Concorezzo Via San Rainaldo vendita negozio
Negozio in vendita a Concorezzo (HOME 3663)
1/10
2/10
3/10
4/10
5/10
6/10
7/10
8/10
9/10
10/10
Concorezzo Via San Rainaldo vendita negozio
Concorezzo Via San Rainaldo | Negozio con tre vetrine in area centrale riqualificata.
Venduto
Spazio commerciale al piano terra con forte visibilità
In vendita spazio commerciale al piano terreno, dotato di tre ampie vetrine su strada.
Una soluzione pensata per chi desidera dare forza e riconoscibilità alla propria attività attraverso una presenza fisica solida e visibile, coerente con il proprio posizionamento.
L’immobile si presta sia come negozio al dettaglio, sia come studio professionale o laboratorio per artigiani. La distribuzione interna è razionale e facilmente personalizzabile.
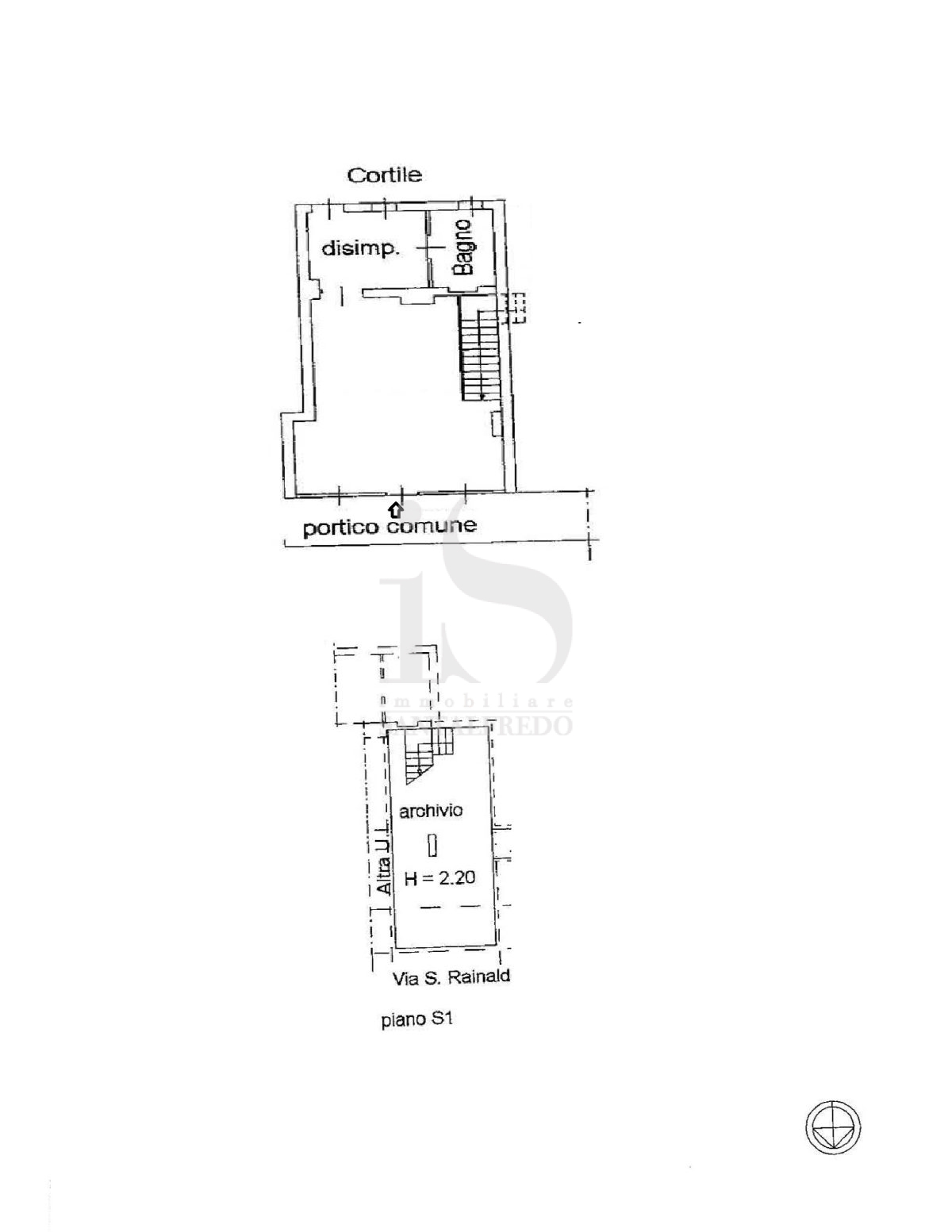
Superficie, distribuzione interna e funzionalità degli spazi
L’immobile ha una superficie complessiva di circa 75 mq, articolata su due livelli collegati da scala interna. La planimetria è ben calibrata: consente un allestimento ordinato degli spazi, favorisce la fruizione da parte della clientela e garantisce un ambiente di lavoro funzionale e gradevole.
Lo stato generale, sia del locale sia del fabbricato in cui è inserito, è da considerarsi buono, così come le condizioni interne.
La posizione rappresenta uno dei principali punti di forza. Via San Rainaldo si colloca a ridosso del centro storico di Concorezzo, in un’area oggetto di un importante processo di riqualificazione urbana, con il recupero di edifici dismessi e la realizzazione di nuove costruzioni.
La viabilità è stata recentemente riorganizzata, con la creazione di ampi e sicuri percorsi pedonali e ciclabili, affiancati alla normale circolazione veicolare: un contesto che favorisce il passaggio, la visibilità e la permanenza.
Dotazioni e servizi a supporto dell’attività
Il negozio è dotato di impianto di climatizzazione e sistema di sicurezza con circuito interno.
Sono presenti posti auto interni riservati alla clientela e un posto auto ad uso esclusivo, elementi che migliorano la gestione quotidiana dell’attività.
Soluzione adatta anche per investimento immobiliare
La proposta risulta interessante anche per investitori alla ricerca di una soluzione capace di diversificare il patrimonio, con una rendita potenzialmente attrattiva in un contesto urbano in evoluzione. Richiesta euro 59.000 | riscaldamento autonomo, spese condominiali euro 125,00/mese.
Per maggiori informazioni o per fissare un appuntamento: Immobiliare Santalfredo
Telefono / WhatsApp 039 6908137
Dettagli aggiuntivi
- Anno di costruzione: 1990
- Classe energetica: G 125,17
Richiedi ora un appuntamento
Richiedi un appuntamento. Organizziamo un incontro per mostrarti e apprezzare dal vivo le qualità di questo immobile. Ci assicuriamo di soddisfare le tue esigenze specifiche e di fare tutto il possibile per rendere la tua esperienza di acquisto o locazione unica.
Mappa dell'area
Concorezzo Via San Rainaldo 25
Ti potrebbero piacere anche
Decidi di vendere casa tua ora!
Fai il primo passo verso un cambiamento importante.
Conoscendo il valore della tua casa avrai più controllo e possibilità di ottenere il risultato che cerchi.
Valuta casa tua! Vendi casa con noi!


